Contact Information
Schedule a meeting at one of the offices or online. A lawyer will analyze the situation, calculate the cost and help you find a solution based on your goals.
Phone
Email Us
info@greecegoldenvisa.com.gr
location
Opening hours
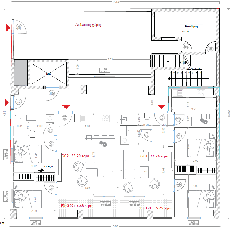
With prices starting at €290,000 for Unit GR2 and €300,000 for Unit GR1, these ground-floor two-bedroom residences offer modern living spaces ranging from 59.88 to 61.5 total square meters, both currently available for immediate acquisition."
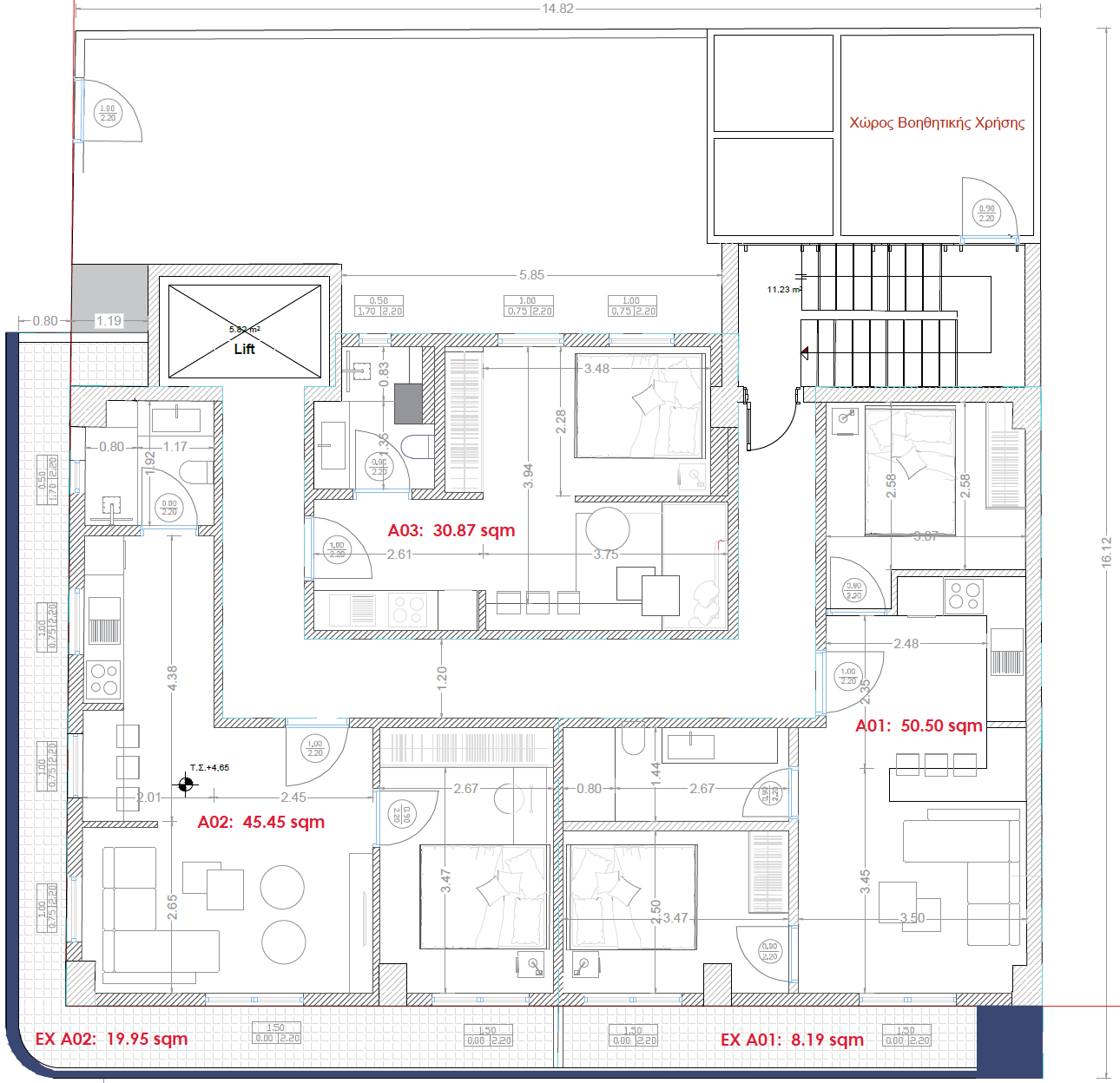
a contemporary residential project located at Panetoliou 9, Peristeri, in one of Athens’ most dynamic western suburbs. The project involves the revitalization of a building (original structure from 1978) into a modern complex of one and two-bedroom apartments. Construction is slated to begin in April 2026, with a scheduled delivery window of May 2027.
Strategically positioned near the Agios Antonios Metro Station, the development offers seamless connectivity to central Athens and is a short walk from the vibrant cafés and shops of Bournazi Square.
Unit G1: A 62.00 sqm 2-bedroom apartment featuring 56 sqm of internal space and a 6 sqm balcony.
Unit G2: A 59.00 sqm 2-bedroom apartment with 53 sqm of internal space and a 6 sqm balcony.
Schedule a meeting at one of the offices or online. A lawyer will analyze the situation, calculate the cost and help you find a solution based on your goals.
Phone
Email Us
info@greecegoldenvisa.com.gr
location
Opening hours
to save your favourite homes and more
Log in with emailManage your listings, profile and more.
Enter your email address and we will send you a link to change your password.
Manage your listings, profile and more
Sign up with emailAlready have an account? Log in
Adding {{itemName}} to cart
Added {{itemName}} to cart