Contact Information
Schedule a meeting at one of the offices or online. A lawyer will analyze the situation, calculate the cost and help you find a solution based on your goals.
Phone
Email Us
info@greecegoldenvisa.com.gr
location
Opening hours
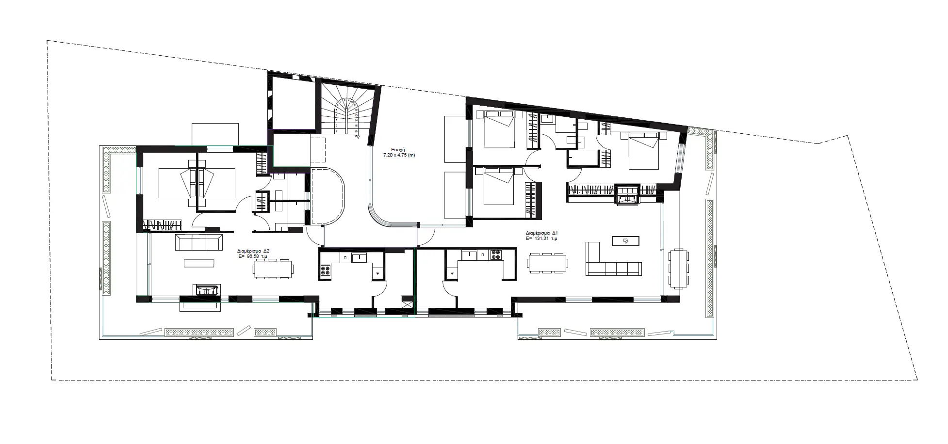
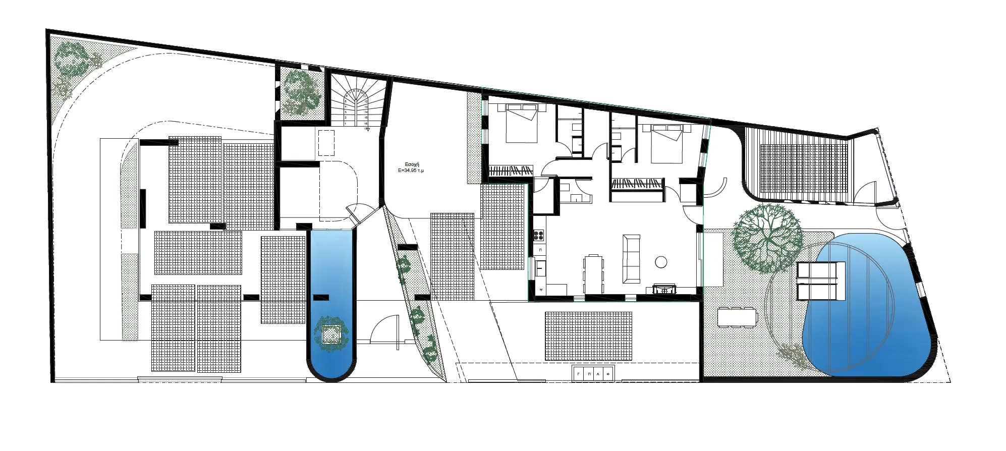
Discover your new apartment in Kalamata , the second-largest city in the Peloponnese , located on the stunning blue Messinian Bay , near Mount Taygetos (2,404 m). This project offers a perfect base to explore Messinia's myths and landmarks , being just 2.5 hours (245 km) from Athens.The development is currently under construction , with an estimated delivery date in September 2026.
Key Features and Location:
Iroon Square (all within 400m)
The project offers apartments with modern interior design in the building pictured. Specific units include three-bedroom layouts across various floors:
Schedule a meeting at one of the offices or online. A lawyer will analyze the situation, calculate the cost and help you find a solution based on your goals.
Phone
Email Us
info@greecegoldenvisa.com.gr
location
Opening hours
to save your favourite homes and more
Log in with emailManage your listings, profile and more.
Enter your email address and we will send you a link to change your password.
Manage your listings, profile and more
Sign up with emailAlready have an account? Log in
Adding {{itemName}} to cart
Added {{itemName}} to cart