Contact Information
Schedule a meeting at one of the offices or online. A lawyer will analyze the situation, calculate the cost and help you find a solution based on your goals.
Phone
Email Us
info@greecegoldenvisa.com.gr
location
Opening hours
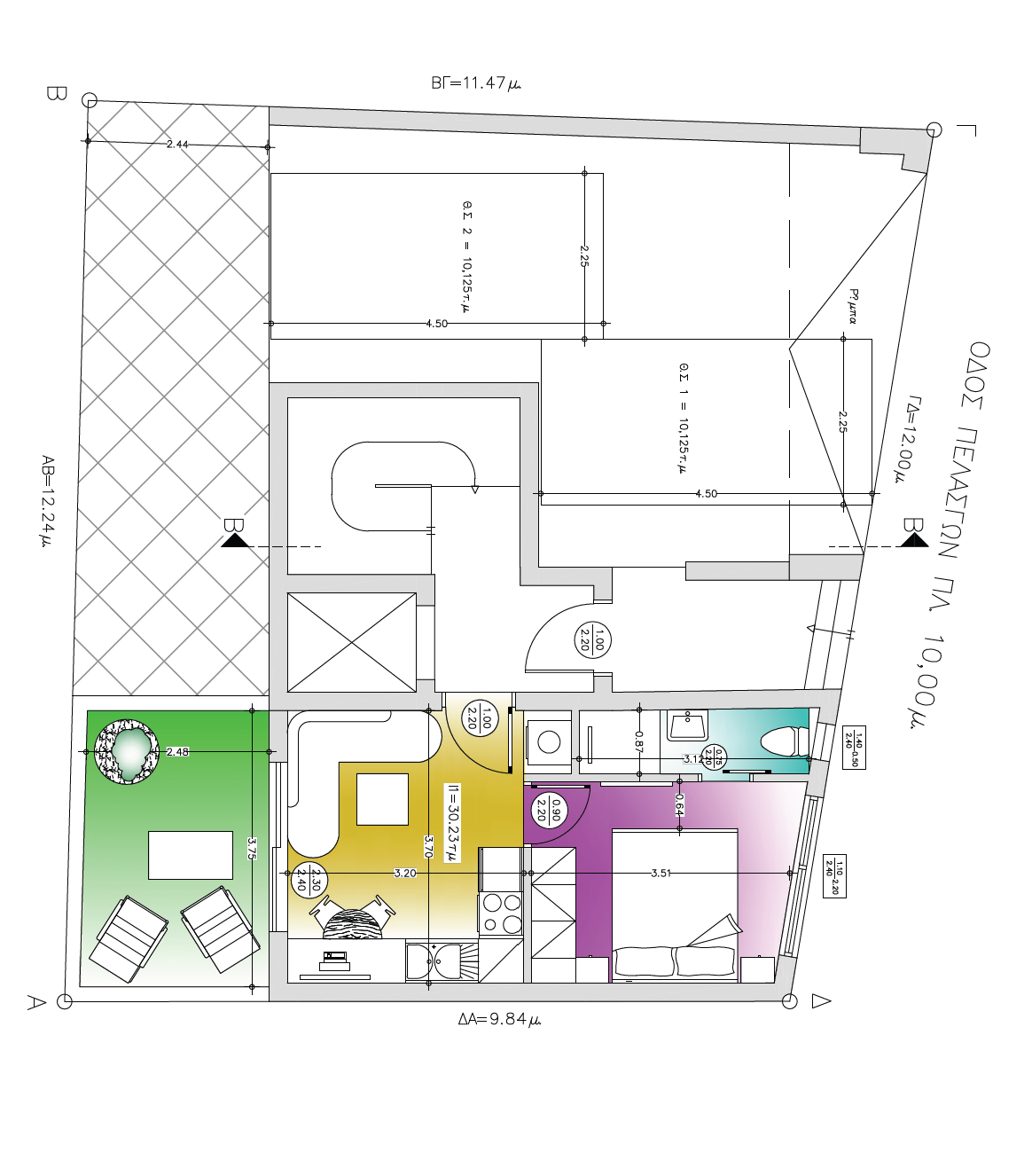
Discover a beautifully renovated opportunity in the vibrant Peristeri neighborhood of West Athens. This is a Ground Floor unit situated at Pelasgon 42, currently undergoing a full modernization and expected to be completed within the next 2 months. The base building itself was constructed in 2010.
This apartment is configured as a compact 1-bedroom, 1-bathroom residence. It features a covered area of 30.23 m2, making it an ideal choice for a single professional, a couple, or as an investment property. The floor plan illustrates an efficient layout featuring a combined living/kitchen area, a separate bedroom space, a bathroom, and a small outdoor patio/balcony, offering a functional living space.
The property is currently available for €250,000. Renders show a contemporary, stylish interior design, including a sleek kitchen, a modern bathroom, and a visually appealing living area featuring unique accent walls.
The key selling point of this apartment is its exceptional connectivity and convenience in Peristeri, a heavily populated suburb well-served by public transport.
The location map places the property near major roads like Thivon Street, with key local landmarks including the Peristeri Exhibition Center, Peristeri Park, and the University of West Attica all within the surrounding area. This makes the Ground Floor unit a highly practical and desirable address for city living.
Schedule a meeting at one of the offices or online. A lawyer will analyze the situation, calculate the cost and help you find a solution based on your goals.
Phone
Email Us
info@greecegoldenvisa.com.gr
location
Opening hours
to save your favourite homes and more
Log in with emailManage your listings, profile and more.
Enter your email address and we will send you a link to change your password.
Manage your listings, profile and more
Sign up with emailAlready have an account? Log in
Adding {{itemName}} to cart
Added {{itemName}} to cart