Contact Information
Schedule a meeting at one of the offices or online. A lawyer will analyze the situation, calculate the cost and help you find a solution based on your goals.
Phone
Email Us
info@greecegoldenvisa.com.gr
location
Opening hours
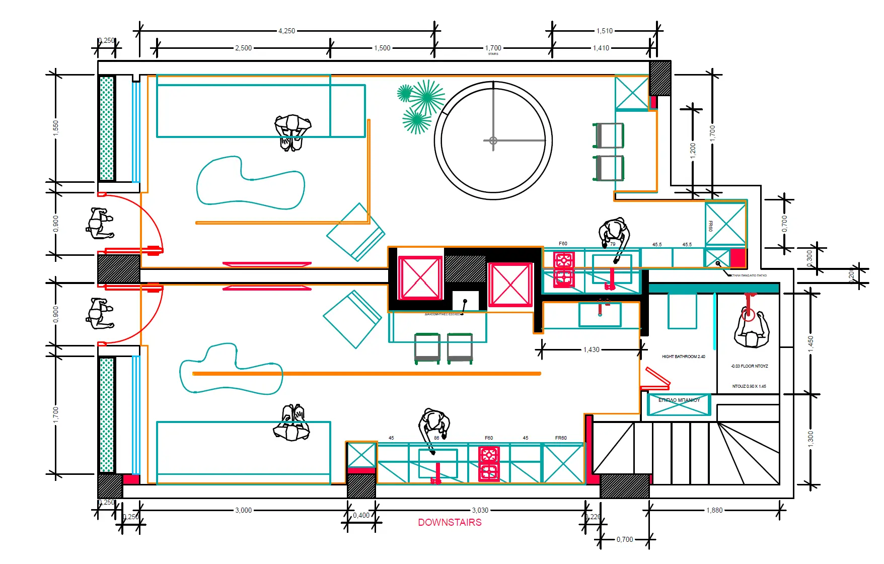
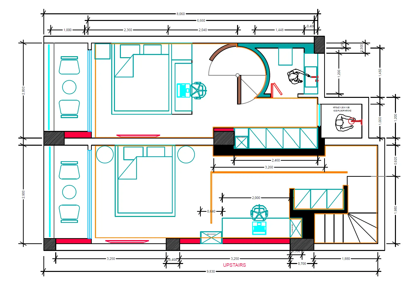
Welcome to a prime investment opportunity in Thessaloniki, Greece, presented by Level Immigration & Properties. This development offers contemporary 1-bedroom, 1-bathroom maisonettes (A1, A2, B1, B2) that are perfect for investors seeking high rental yield or Golden Visa eligibility.
The property, located at Siggrou 39 (or Siggrou 29, please confirm address with developer) , is currently
Under renovation , with an estimated completion of works within
3–4 months from the deposit day. This rapid delivery timeline minimizes waiting time for rental income.
Choose between two optimized floor plans: the compact
44.00 m2 units (A1, B1) or the more spacious
60.95 m2 units (A2, B2). Units A1 and A2 are priced at a highly attractive
€250.000 each.
Location is a key selling point: the property is just a
10-minute walk (700m) from the Thessaloniki Seaside , and only a
2-minute walk (200m) from essential Amenities. Public transport is easily accessible, with a
Bus Station just a 3-minute walk (180m) away. The Thessaloniki Airport is also conveniently located, a 22-minute drive (17 Km) away.
Invest in a modern, well-connected, and quickly delivered property in a vibrant city cation.
Schedule a meeting at one of the offices or online. A lawyer will analyze the situation, calculate the cost and help you find a solution based on your goals.
Phone
Email Us
info@greecegoldenvisa.com.gr
location
Opening hours
to save your favourite homes and more
Log in with emailManage your listings, profile and more.
Enter your email address and we will send you a link to change your password.
Manage your listings, profile and more
Sign up with emailAlready have an account? Log in
Adding {{itemName}} to cart
Added {{itemName}} to cart